Kritzer
Square Feet
Bedrooms
Bathrooms
Floor Plan Features
Unlock Pricing On This Home
Gallery
All sizes and dimensions are nominal or based on approximate builder measurements. Down East Homes reserves the right to make changes due to any changes in material, color, specifications, and features anytime without notice or obligations.
All prices are subject to change without notice – view our disclaimer.
Virtual Tour (if available)
Visualize Your Life in This Manufactured Home Floor Plan
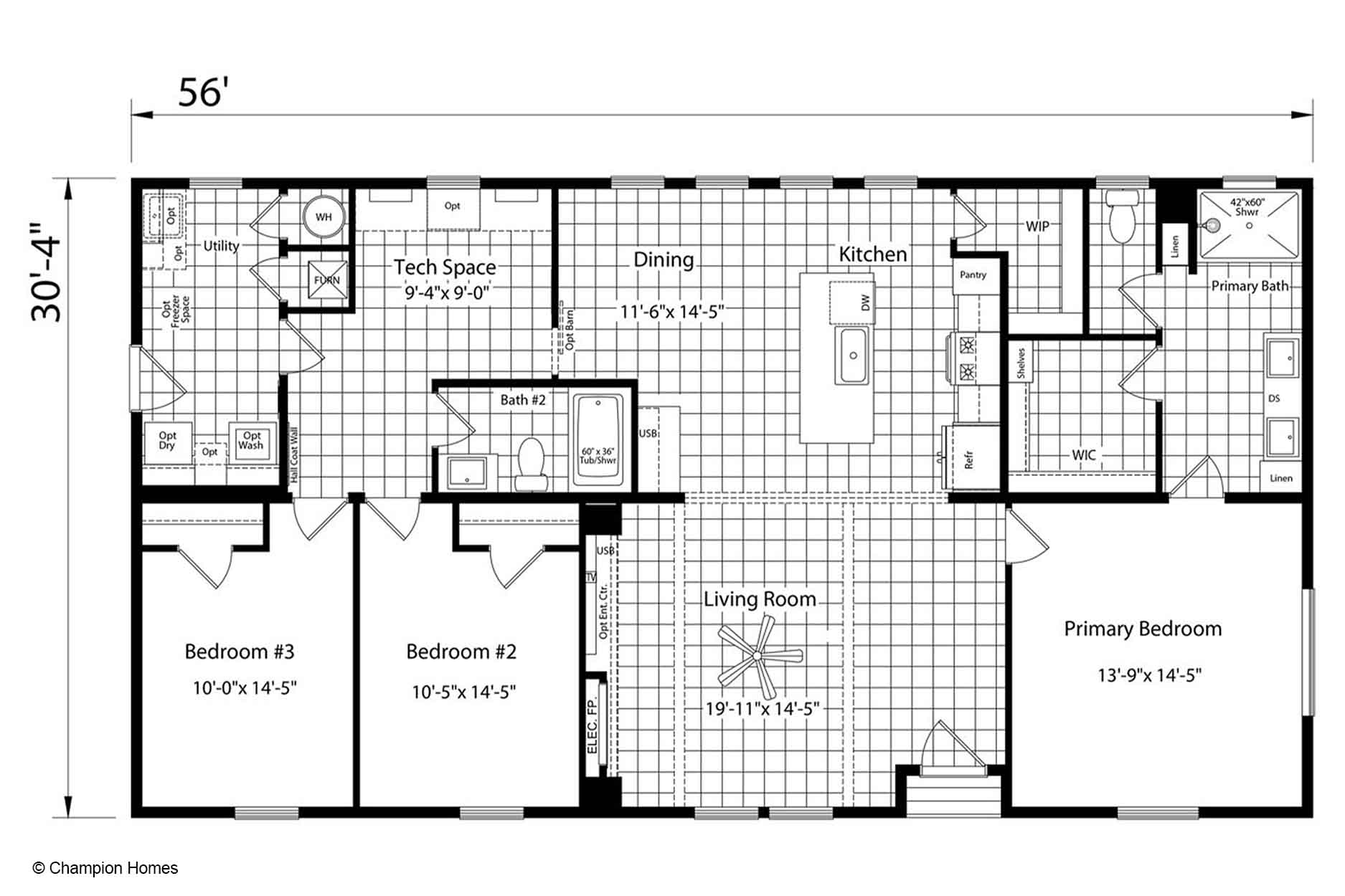
This thoughtfully designed 1,699 square foot manufactured home available in Elizabeth City, NC, offers a functional, family-friendly layout that makes everyday living and entertaining feel effortless. With spacious bedrooms, an open-concept kitchen, and even a dedicated tech space, this floor plan has room for every part of your life.
Main Living Areas
- Living Room
- Bright and open with front-facing windows
- Perfect for gathering, relaxing, or movie nights
- An Optional electric fireplace adds a cozy touch
Kitchen
- Central island with sink, built-in dishwasher, and seating space
- Ample counter space for meal prep
- Walk-in pantry and built-in shelves for extra storage
- Positioned between the dining area and primary suite for easy access
Dining Area
- Open to both the kitchen and the living room
- Large enough for a family table and ideal for entertaining
Bedrooms
- Primary Bedroom
- Privately located at one end of the home
- Spacious layout with room for a king bed and more
- Features a large walk-in closet
- Primary Bath
- Double sink vanity for convenience
- 42″x60″ walk-in shower
- Linen closet and a separate toilet area for privacy
- Bedroom #2 and Bedroom #3
- Located on the opposite end of the home for privacy
- Ideal for children, guests, or even a home office
- Share Bath #2, which includes a full-size tub/shower
Bonus Spaces
Tech Space
- Perfect for remote work, homework, or hobbies
- Central location keeps you connected without sacrificing focus
Utility Room
- Space for optional washer/dryer and freezer
- Rear entrance provides a mudroom-style drop zone
- Additional storage for cleaning supplies, coats, or pantry overflow
Additional Features
- Multiple layout and storage options to suit your lifestyle
- Smartly placed windows bring in natural light throughout
This home offers flexibility, comfort, and modern style, whether you’re hosting friends, managing a busy household, or just enjoying a quiet evening in. Imagine your family living here, growing here, and making memories that last a lifetime.